百科装修知识家装设计
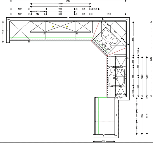
厨房设计案例(2):利用拐角空间的L型橱柜设计




    ◆设计师介绍:

    这间厨房的面积有10平方米左右。与业主沟通后,我把通常很难利用的拐角区大胆地设计成了烹饪区,从而保证了充足的储藏空间。橱柜高光的深灰色门板很大气,高贵;与浅灰色的墙砖,地砖搭配也很谐调;

    ◆业主点评:

    三口之家,通常由自己来料理饮食,对厨房及橱柜的要求以美观和充足的储藏空间为主。 

    厨房设计案例:利用拐角空间的L型橱柜设计 
    厨房设计案例:利用拐角空间的L型橱柜设计

    厨房设计案例:利用拐角空间的L型橱柜设计
     厨房设计案例:利用拐角空间的L型橱柜设计

相关文章:

·厨房设计案例(1):L型橱柜设计
·安全第一 儿童房的装修设计应注意三点
·经济实用的简约厨房设计特色
·儿童房的装修设计要诀(图)
·家庭装修的设计原则
·家居装修用色彩改变心情 红黄色调增强家居活...
·5款现代的儿童房设计(图)
·家庭装修的几种设计方法
·巧用家具增加室内空间
·巧用色调营造温馨家居环境
·厨房设计案例(3):L型橱柜设计
·厨房设计案例(4):开放式厨房U型橱柜设计
·厨房设计案例(5):开放式厨房U型橱柜设计
·厨房设计案例(6):U型橱柜设计
·厨房设计案例(7):简单但功能齐全的I型橱柜...
·厨房设计案例(8):个性的I型橱柜设计
·厨房设计案例(9):岛型橱柜设计 随意休闲在...
·厨房设计案例(10):岛型橱柜设计 烹饪休闲在...
·厨房设计案例(11):岛型橱柜设计 清洗用餐在...
·厨房设计案例(12):不规则橱柜设计