百科装修知识家装设计
厨房设计案例(6):U型橱柜设计




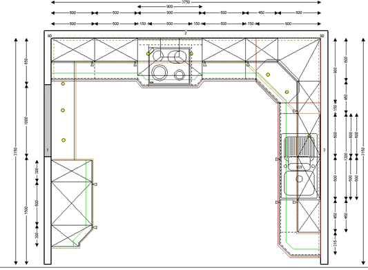
    ◆设计师介绍:

    这是一个11平方的厨房,采用U型橱柜设计,储藏空间是较为宽裕的,但也是需要合理的利用,才会不浪费空间,拐角处通常比较难利用,因此,上下橱柜都设计使用360度转盘拐角柜,拿取物品方便,也可以放很多东西;灶柜两边的拉篮可以放各式调料瓶;抽屉中的刀叉盘可以把餐具收纳得干干净净;橱柜门板选用乡村风格的,乡村风格外观是业主全家都喜爱的一款。

    ◆业主点评:

    5口之家,三代同堂家庭,全家人都爱吃家里的饭,钟点工的厨艺也不错,人多东西也多,所以储藏空间一定要充裕。

    厨房设计案例:U型橱柜设计 
    厨房设计案例:U型橱柜设计

    厨房设计案例:U型橱柜设计 
    厨房设计案例:U型橱柜设计

相关文章:

·厨房设计案例(5):开放式厨房U型橱柜设计
·厨房设计案例(4):开放式厨房U型橱柜设计
·厨房设计案例(3):L型橱柜设计
·厨房设计案例(2):利用拐角空间的L型橱柜设...
·厨房设计案例(1):L型橱柜设计
·安全第一 儿童房的装修设计应注意三点
·经济实用的简约厨房设计特色
·儿童房的装修设计要诀(图)
·家庭装修的设计原则
·家居装修用色彩改变心情 红黄色调增强家居活...
·厨房设计案例(7):简单但功能齐全的I型橱柜...
·厨房设计案例(8):个性的I型橱柜设计
·厨房设计案例(9):岛型橱柜设计 随意休闲在...
·厨房设计案例(10):岛型橱柜设计 烹饪休闲在...
·厨房设计案例(11):岛型橱柜设计 清洗用餐在...
·厨房设计案例(12):不规则橱柜设计
·厨房设计案例(13):异型橱柜设计
·厨房设计案例(14):狭长型橱柜设计
·不同风格的卧室装修设计 让家与众不同(图)
·厨房设计案例(16):便宜实用的I型橱柜设计