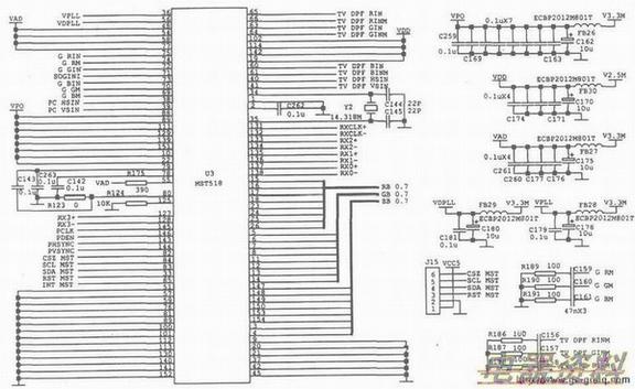
该故障通常会导致电视机出现无图像、图像异常、屏幕显示异常、彩色异常、无字符、字符显示异常等现象。相关电路见上图、中图、下图,先检测U3(15)-(18)脚、(23)-(26)脚输出的8位红色数字信号,(5)一(8)脚、(11)-(14)脚输出的8位绿色数字信号,(3)、(4)、(147)-(150)、(153)、(154)脚输出的8位蓝色数字信号的波形是否正常。如果异常则按选择某一路的图像信号对应检测U3引脚的或波形来判断。如选择PC-RCB或YpbPr图像信号时,则分别检测U3(75)、(72)、(70)脚的波形是否正常,若异常则检查前级U6电路及元件是否正常。如选择TV-RGB或DPF-RGB信号时,则分别检测U3(65)、(63)、(60)脚是否有约0.3V电压,或分别检测该脚的波形是否正常。若异常则分别检查前级U20电路及元件。若正常则检测U3(38)、(39)脚是否有约2.4V和2.3V电压,或分别检测该脚输入的PC-HS、vs信号波形是否正常。
若异常则分别检查前级U16电路及元件。若正常则分别检测U3(40)、(41)脚是否有约3V和3.15V电压,或分别检测该脚输入的TV-HS、vs信号波形是否正常。若异常则检查Ul0电路及元件。
后分别检查U3相关引脚的3.3V和2.5V是否正常。若异常则排除该故障。若正常则检查U3(34)、(35)脚是否有约1.35V和1.65V电压。
若异常则检查Y2、C144、C145是否存在开路、短路或性能不良等。若正常则分别检查U3(82)、(83)、(84)脚是否有约0.65V、4.45V和4.38V的眺变电压。若异常则检查前级总线电路等。若正常则分别检测U3(143)~(146)脚的信号波形是否正常。若异常则检查U2、U3、U7自身及外围元件是否正常。若正常则检查主板电路、排线、插件J22及液晶屏内部驱动电路等是否正常。


