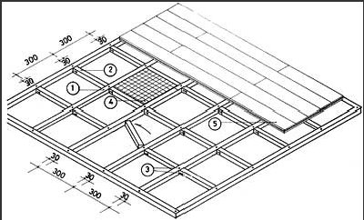
??1、装修施工时,主木搁栅、次木搁栅中距均为300mm,主木搁栅为300mm×30mm通长,次木搁栅为30×30×18mm,长度为271档或者272档(根据主木搁栅材质来取定,如材质坚硬可取271档,如材质松软可取272档。)主、次木搁栅平面在一个水平面上。主木搁栅用镀锌螺旋钉固定在原地坪,次木搁栅用镀锌螺旋钉两边斜钉在主木搁栅上固定。
??2、主、次木搁栅表层及地坪表层(可延伸至墙四周高150踢脚板高度)均涂刷二至三遍防腐防水剂。
??3、主、次木搁栅间空档,底层住宅可放置防虫霉剂(或少量干石灰),底层以上住宅可放置聚苯乙烯材料(俗称泡沫塑料板材,可起到隔声和保暖作用)。
??4、木地板选材在含水率12%以下,顺次木搁栅向铺设四周靠墙处可留设8——10mm空隙,以防木地板涨缩,空隙用踢脚板遮挡。
??①主木搁栅施工 ②次木搁栅施工 ③镀锌螺旋钉施工 ④聚苯乙烯板施工 ⑤木地板施工

木地板装饰施工新工艺
|