百科→ 装修知识→ 家装设计
厨房设计案例(27):开放式厨房橱柜设计




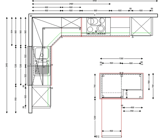
    开放式厨房设计案例:开放式厨房橱柜设计。根据不同的生活习惯,让全家都来做家务。

    厨房设计案例:开放式厨房橱柜设计 
    厨房设计案例:开放式厨房橱柜设计

    厨房设计案例:开放式厨房橱柜设计 
    厨房设计案例:开放式厨房橱柜设计

相关文章:

·厨房设计案例(26):带用餐区的橱柜设计
·厨房设计案例(25):小型用餐区的橱柜设计
·厨房设计案例(24):开放式厨房与客厅的结合
·厨房设计案例(23):注重烹饪功能的L型橱柜设...
·厨房设计案例(22):现代风格的U型橱柜设计
·家居装修设计的美学原则
·厨房设计案例(21):开放式古典风格U型橱柜设...
·厨房设计案例(20):古典风格的L型橱柜设计
·厨房设计案例(19):中档的U型橱柜设计
·厨房设计案例(18):中档的L型橱柜设计
·厨房设计案例(28):坡顶厨房的L型橱柜设计
·怎样在小户型空间里设计出儿童房?
·装修大讲堂:厨房装修需注意的八个要点(图)
·儿童房的装修设计需注意几个要点
·现代个性化客厅设计装饰技巧
·不规则的房型如何装修设计?
·家庭装修时书房设计须注意哪些细节?
·家庭装修灯光设计技巧
·装修卫生间怎样做到干湿分区
·家庭装修时主、次卫生间如何设计?
·小空间大作用,巧妙设计让飘窗“飘
·书房装修设计——雅、序、明、静
·取舍有“道” 家庭装修吊顶别入误
·电视背景墙的装修设计及流行做法
·小户型房屋装修布置与设计原则