有关多地控制的接线图,什么是多地控制,就是由多个地方控制一个设备,在一个地方打开电灯,在另一处关闭电灯,应该怎么进行接线,下面具体来看下。
多地控制线路的接线图
例如:在楼上关闭楼下的灯,假设有三层楼,这三层楼都能控制这个电灯。

每层楼都有启动和停止按钮。

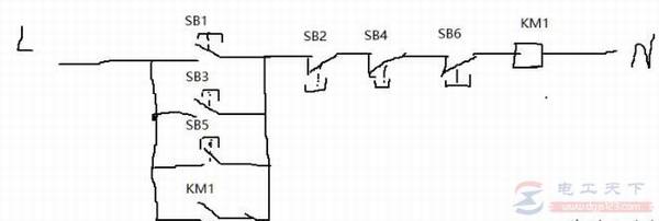
首先,画一个启保亭电路(自锁电路)

当按钮SB1按下,线圈KM1得电,KM1常开触点闭合,形成自锁。一般启动信号用常开,停止用常闭,由此可得到:

每个启动按钮都能启动电机,而且每个停止按钮都能暂停电机。
如何标注线号?
一般线号用三位数(个人习惯),三位数好分辨,三位数长度都是一样的,所以三位更方便查看。
线号每过一个元器件都会变化。

实物接线:

将启动按钮并在一起,线号100,如下图:

借号101线号:

完成接线后的效果:
