变频器主控板上通信电路


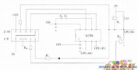
  当由可编程(PLC)或上位计算机、人机界面等进行控制时,必须通过通信接口相互传递信号。下图是LG变频器的通讯接口。

  变频器通信时,通常采用两线制的RS485接口。西门子变频器也是一样。两线分别用于传递和接收信号。变频器在接收到信号后传递信号之前,这两种信号都经过A1701、75176B等,以保证良好的通信效果。
  
  所以,变频器主控板上的通信接口电路主要是指这部分电路,还有信号的抗干扰电路。  

LG变频器的通讯接口电路