ZL30F装载机前车架焊接工艺改进-工业设计
·当前位置: 学海荡舟-论文 >> 论文资料 >> 工科论文 >> 工业设计
ZL30F装载机前车架焊接工艺改进


目前我公司生产的ZL30F装载机,因焊接结构件的变形超差造成的失效已占相当大的比率。本文主要针对ZL30F装载机前车架焊后变形超差率较高的问题,通过分析该前车架的具体结构形式,制定并采用了合理的焊接工艺,使前车架的焊后变形得到了有效控制。

ZL30F轮式装载机前车架是装载机的重要承载部件,属于空间半箱型的对称焊接结构,其主要组成部件有左、右翼箱,翻斗缸座,前板,上横梁,铰接架,下梁和桥安装板等。用Solidege三维软件建立的三维实体模型及其组成部件如图1所示。


前车架所有部件之间的连接均为连续角焊缝连接。右翼箱1和左翼箱2主要由与前板和上横梁及铰接架相连接的翼板、外翼板、筋板、贴盘等组成。翼板和外翼板的厚度均为16 mm。翻斗缸座3主要组成件的厚度为24 mm。前板4的厚度为10 mm。上横梁5为折弯件,板厚为24 mm。铰接架6主要组成件上、下铰接板的厚度为36 mm,4块筋板的厚度为20 mm。下梁7的厚度为12 mm。桥安装板8的厚度为30 mm。材质均为焊接性能良好的低碳合金高强度钢Q345A。

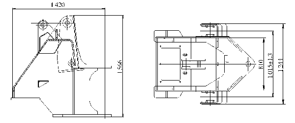
图2所示为前车架主要结构尺寸。其中宽度方向的3个尺寸810 mm、1015 mm±1.3 mm、 1 244 mm为结构关键尺寸。

1 焊接方法的选择
CO2气体保护焊作为一种高效、高质量、低消耗的焊接方法,在国内工程机械行业车架等结构件的焊接中得到广泛应用,我公司装载机前后车架的焊接也采用CO2气体保护焊工艺。
2 ZL30F装载机前车架焊接工艺参数
对于ZL30F装载机前车架,其组成工件的板厚大多为12~24 mm,只有上下铰板和桥安装板厚度达到30 mm以上。由于颗粒过渡焊接的电弧穿透能力强,熔深大,焊接效率高,适合于12~50 mm中厚板焊接,因此该车架的焊接采用颗粒过渡焊接,焊接工艺参数见表1。

3 前车架焊接变形的预防措施
据统计,在采用本文介绍的工艺改进措施之前,前车架的最大变形量达到4.5~5.5 mm,集中反映在前车架上部左右翼箱上面两铰接孔横向尺寸的收缩变形上,变形超差率达到20%以上,其中85%的变形量达到4 mm。为了控制这个关键尺寸(1 015±1.3)mm(见图2),我们在焊接工艺上采取了以下改进措施:
(1)采用反变形法进行点固装配
对前车架焊接变形的预防,由于已经预测出焊后收缩变形量,在设计装配焊夹具时,将两侧翼箱的上部档间距离预留出4 mm(注意余量要与车架中心面对称)。试验表明,焊后能够保证尺寸(1 015±1.3)mm的要求。

另外,还设计了一种支撑杆,通过调整支撑杆中间的双向调整螺母,使其间距达到标准尺寸加上自由变形量的一半。在施焊时,将调整好的支撑杆置于两翼箱中间,焊后松开螺母,去除支撑杆,焊件少量自由收缩后恰好达到结构标准尺寸的要求。实践证明,利用刚性支撑焊接时,只要预留出焊接自由收缩量的一半即可。
(2)采用合理的焊接工艺参数
焊接热输入是影响焊件变形量的关键因素,当焊接方法确定后,可通过调节焊接工艺参数来控制热输入。在保证焊缝强度的前提下,应尽量采取小规范的焊接参数。具有对称截面形状和焊缝对称布置的焊件,焊接时应对称施焊,确保每一条焊缝的焊接热输入应相同。如果焊缝分布不对称,在结构边缘的焊缝,采用多层焊接,每层用小规范,把它对构件变形的影响降到最低。
对于前车架,由于它是对称结构,影响收缩变形最大的两条焊缝是两侧翼箱与前车架骨架连接处的角焊缝,连接处无坡口,焊脚高为10 mm,焊缝相对于前车架中心面对称布置。为减少焊接变形,应取小规范参数焊接,由于焊缝焊脚较大,长度较长,为减少变形,在施焊时分两层、三道焊完成。施焊时采用交叉对称焊接,每段长度约100 mm。调整后的焊接工艺参数见表2。
(3)选择合理的装配及焊接顺序
为减少整体焊接结构件的焊接变形量,将各部件单独焊接后,再进行整体的组装和前车架总成的焊接。
在设计和编制ZL30F前车架的焊接工艺时,将左右翼箱、翻斗缸座、中间横梁、铰接架单独作为子部件,针对各子部件设计各自的焊装夹具,并单独完成焊接,然后再将各子部件组装成前车架总成实施组装焊接。这对于控制整体的焊接变形起到了很好的作用。实际上,这种装配焊接的效率很高,适合大批量流水作业。
对称结构上的对称焊缝,最好由多名焊工对称地同时施焊,使正反两方向变形抵消。若条件不允许,只能先焊一侧,后焊另一侧。这时要注意,用同样的工艺参数施焊,先焊的一侧引起的变形总比后焊的一侧大些。因此建议把先焊侧改为多层多道焊,并降低每层(道)焊接热输入,再采用两面交替施焊顺序,以使每侧引起的变形最后都得以抵消。当焊缝在结构上分布不对称时,如果焊缝位于焊件中性轴两侧,可以通过调节焊接热输入和交替施焊的顺序控制变形;如果焊缝分布在中性轴一侧,只能利用减少焊接热输入或采取反变形措施去解决。

4 结论
由于采取了改进的焊接工艺措施,使前车架翼箱上部的焊后变形量有所下降,从原来的4.5 mm下降到2 mm,因焊接变形超差造成的失效率由原来的20%以上降低到目前的5%~10%,大大降低了焊后返修率,满足了产品质量的要求,提高了生产效率。
  • 上一篇论文:
  • 下一篇论文: